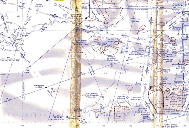
G-ATPT 48.20n 10w 1443 F090 49.30n 08w 1536 RR/Round Island 1610 After 08W contact London on 124.75 or 133.6 VHF
Cessna 182J on delivery, G-ATPT. Still going strong in the UK some 45 years later!
[See extract from Aerad chart EUR/1 (January 1965) below for location of Round Island, just off Lands End]

No comments:
Post a Comment